NEW 一戸建て
75坪・6LDK「東山町Selection」
【オンライン内見可能】
◇◆249平米「家族団欒の充実空間」◆◇周辺に買物施設が充実しており生活利便良好
外観写真
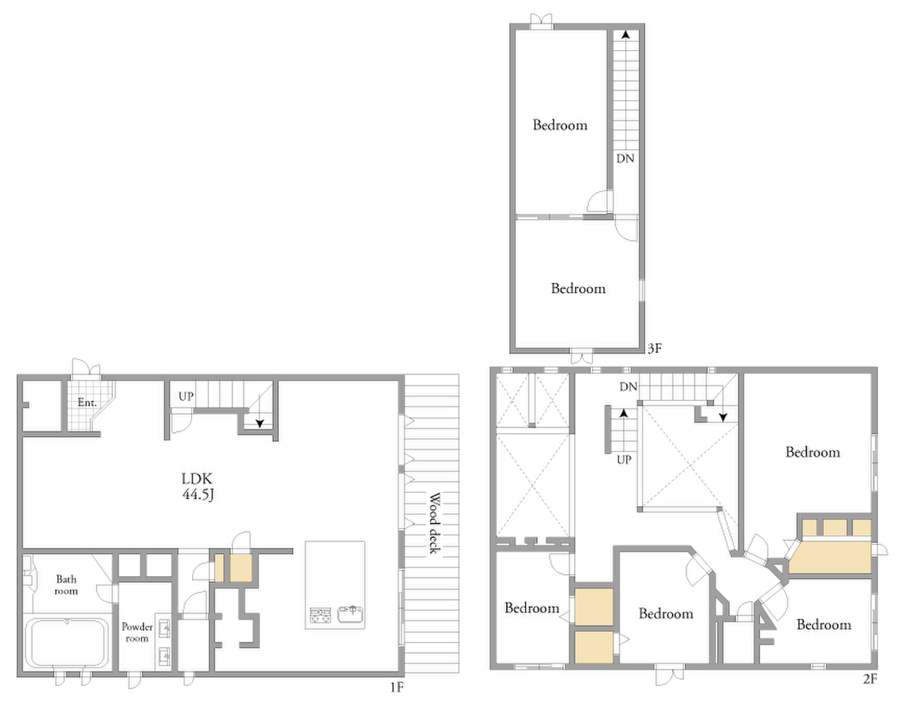
間取り図
ネットで見学予約できる日程
◯:即時予約可
■:仮予約可
TEL:電話予約できる可能性あり
物件写真
-
外観写真 -
外観写真 -
前面道路の写真 -
前面道路の写真 -
東武東上線「ときわ台」駅(現地まで約1000m) -
東京メトロ有楽町線・副都心線「小竹向原」駅(現地まで約1400m) -
コモディイイダ東新町店(現地まで約600m) -
オーケーストア大谷口店(現地まで約350m) -
板橋区立上板橋第一中学校 南常盤台店(現地まで約1000m) -
板橋区立上板橋小学校(現地まで約400m) -
日本大学医学部附属板橋病院(現地まで約950m) -
城北中央公園(現地まで約1100m) -
東山みなみ公園(現地まで約220m)
物件のポイント
担当者:仲西 菜々瀬
【オンライン内見可能】
249平米・6LDK「家族団欒の充実空間」
LDK44.5帖「ゆとりあるリビング」
~不動産の専門家がマイホーム探しを徹底サポート~
生活に必要な施設の充実さが特徴です
スーパーや公園、商業施設など生活利便性は良好です
◆◇◆◇◆◇◆◇◆◇◆◇◆◇◆◇◆◇◆◇◆◇◆◇◆◇◆◇◆◇◆◇◆◇◆◇◆◇◆◇
【住宅購入セミナー(無料)】 個別の住宅ローン相談からセミナーを毎月開催
【ライフプラン(無料)】 10~35年後をシミュレーションすることが必要です
【物件調査報告書】 不動産購入に関するお客様のあらゆる不安を解消いたします
【会員限定物件公開中(無料)】 エリア最大級の情報量
【周辺、土地、統計環境レポート作成(無料)】 周辺情報を徹底的に調査
◆◇◆◇◆◇◆◇◆◇◆◇◆◇◆◇◆◇◆◇◆◇◆◇◆◇◆◇◆◇◆◇◆◇◆◇◆◇◆◇
ローンシミュレーション
この物件を購入した場合の、月々の支払い額の一例です。
-
借入金額
18980万円 -
自己資金
万円 -
借入期間
-
借入金利
-
ボーナス払い
計算
月々のお支払いボーナス月のお支払い
※返済金額はあくまでも目安の数値となります。
詳細はお問い合わせください。
※住宅購入では、物件資金とは別に諸経費が必要です
(火災保険、税金、ローン手数料等)。
諸経費のおおよその目安は、物件価格の3%~10%です。
物件概要
| 所在地 | 東京都板橋区東山町地図で表示 | ||
|---|---|---|---|
| 交通 | 東武鉄道東上線「ときわ台」駅徒歩13分 東京メトロ有楽町線「小竹向原」駅徒歩20分 東京地下鉄副都心線「小竹向原」駅徒歩20分 |
||
| 間取り | 6LDK | ||
| 土地面積 | 274.38m²(登記) | 建物面積 | 249.07m²(登記) |
| 構造 | 木造 | セットバック | 済み |
| 階建 | 地上3階 | 私道面積 | 無 |
| 築年月 | 2005年05月 | 引渡し | 相談 |
| 建ぺい率/容積率 | 60%/160% | 接道 | 一方 北東側幅4m |
| 土地権利関連 | 土地権利:所有権 | 地目 | 宅地 |
| 用途地域 | 第一種中高層住居専用地域 |
現況 | 居住中 |
| 取引態様 | 仲介 | 物件番号 | 060260403b |
| 情報更新日 | 2026-04-06 | 次回更新予定日 | 随時 |
| 設備 | 都市ガス/東京電力/公営水道/下水排水/収納/対面キッチン/駐車場2台/日当り良好/閑静な住宅街/バス・トイレ別/脱衣所あり/公園800m以内/小学校まで1km以内/ガレージ/2世帯住宅/LDK20畳以上/浴室に窓/通風良好/小学校徒歩10分以内/コンビニ徒歩5分以内/スーパー徒歩10分以内/駅まで平坦/2沿線以上利用可 | ||
| 学区 | 板橋区立上板橋小学校(現地まで約400m)板橋区立上板橋第一中学校(現地まで約1000m) | ||
| 備考 | 総戸数:1戸 取引条件有効期限:2026-05-31 |
||

